Survol du projet

Pathway Housing, organisme interconfessionnel sans but lucratif, est propriétaire et gestionnaire de deux immeubles d’appartements datant du début des années 1990. En agrandissant son immeuble Arbour Mill à Mississauga, l’organisme a su éviter les difficultés liées à l’acquisition d’un nouveau terrain, tout en ouvrant ses portes à de nouveaux résidents dans un quartier bien ancré et solidaire.

À l’extrémité nord de l’immeuble, une structure verticale de deux étages (10 m sur 18 m) vient relier les cinquième et sixième étages du bâtiment voisin, créant une extension harmonieuse sans altérer la configuration existante. Comme l’édifice est demeuré habité durant les travaux, il a été essentiel de raccourcir la durée du chantier, d’où le choix judicieux du bois massif.

wood design and building logo

article en vedette

Faites défiler
pour lire

Avantages du projet

Approvisionnement local durable : fabriqués dans l’usine certifiée par le FSC d’Element5, à St Thomas, les panneaux de bois lamellé-croisé proviennent de bois récolté dans des forêts de l’Ontario gérées durablement, garantissant des pratiques responsables de la forêt à la production.

Construction à faible carbone : l’utilisation du bois massif plutôt que l’acier a entraîné une réduction estimée de 20 à 50 % du carbone intrinsèque de la structure. L’emplacement proche de l’usine de fabrication a également permis de diminuer les émissions et coûts liés au transport.

Système structurel léger : grâce à un poids structurel réduit d’environ 50 % par rapport à un bâtiment équivalent en béton, l’extension en bois massif a pu s’appuyer sur la structure existante, sans qu’il soit nécessaire d’ajouter des renforcements.

Rapidité et rentabilité de la construction : grâce à ses performances, la construction en bois massif peut être réalisée jusqu’à 25 %, voire davantage, plus vite que les méthodes traditionnelles. Pour Pathway, la synergie entre fabrication, livraison et installation a rendu possible le montage complet de la structure en deux semaines et demie seulement. Le recours à des panneaux en bois lamellé-croisé de pleine longueur et au perçage des ouvertures mécaniques sur place a accéléré encore plus la construction.

Chantier peu bruyant et moins perturbant : les bâtiments en bois massif sont assemblés plutôt que construits sur place, ce qui réduit considérablement le bruit et peut diminuer la circulation de véhicules sur le chantier jusqu’à 90 %. Par ailleurs, l’installation exige aussi moins de travailleurs; chez Pathway, un grutier et une équipe réduite de deux à trois personnes ont suffi pour installer le bois, réduisant ainsi au minimum les perturbations pour le quartier environnant.

Densification douce : en venant agrandir le bâtiment existant, l’extension a été conçue sans répercussions sur les propriétés voisines, facilitant ainsi l’accueil immédiat de nouveaux résidents dans un quartier établi et déjà doté des commodités familières.

Surmonter les difficultés avec assurance

Un partenariat solide au sein de l’équipe de projet dès les premières étapes est essentiel à la réussite du chantier. Chez Pathways, ce processus a débuté par un relevé minutieux des conditions existantes et une compréhension commune du degré de tolérance au risque. Grâce à cet entendement préalable, l’installation s’est déroulée avec fluidité, permettant la pose des murs et planchers sans obstacle.

Les chantiers portant sur des bâtiments déjà érigés réservent fréquemment des difficultés inattendues, et celui‑ci n’a pas échappé à la règle. Une fois le revêtement du mur de contreventement retiré, l’équipe a constaté que la surface en béton présentait des irrégularités, n’étant ni droite ni parfaitement verticale. Pour en évaluer les tolérances avec exactitude, l’entrepreneur a réalisé une analyse tridimensionnelle de la façade.

Sur la base de cette analyse, des plaques de calage en acier ont été installées derrière le profilé de charpente creux aux deux étages. Celles-ci ont comblé les écarts entre la lambourde d’acier et le béton irrégulier, assurant un alignement précis et un transfert fiable de la charge vers la structure.
À l’arrivée du bois sur le chantier, l’installation s’est effectuée sans accroc, malgré les différences de tolérance entre le bois lamellé-croisé et le béton. Celle du béton varie habituellement entre 25 et 30 mm, tandis que le bois affiche une tolérance de l’ordre de 2 à 3 mm. Cependant, grâce à une préparation rigoureuse, l’équipe a su composer efficacement avec ces écarts.

Jonctions

Dans toute construction en bois massif, la précision des jonctions est un facteur déterminant de la conception, tant pour l’assemblage des panneaux en bois lamellé-croisé entre eux que pour leur liaison avec les éléments en acier de charpente. Le schéma suivant met en lumière deux détails de la jonction du plancher bois-acier : à gauche, une configuration en continu, et à droite, une configuration en extrémité.

Ce schéma présente la jonction verticale entre un panneau mural en bois lamellé-croisé et un autre de plancher, soulignant à la fois le transfert de la charge et l’harmonisation de la connexion des deux éléments.

Système latéral

Le système de résistance aux charges horizontales du bâtiment existant s’appuie sur des murs de contreventement en béton orientés dans le sens court du bâtiment. Pour l’extension verticale, le diaphragme en bois lamellé-croisé se déploie en porte‑à‑faux au‑delà du dernier mur de contreventement afin de rejoindre les étages supérieurs. Un profilé de charpente creux, solidement ancré par des boulons Hilti, vient connecter et fixer le nouveau diaphragme au mur de contreventement existant.

Plan de charpente

Ce schéma présente le nouveau plan de charpente du sixième étage. Les panneaux de plancher en bois lamellé-croisé à deux travées ont 175 mm d’épaisseur. Orientés nord-sud, ils couvrent deux appartements. Ils s’étendent des poutres d’acier en périphérie jusqu’à la structure en béton existante, en passant par les murs mitoyens intérieurs en bois lamellé-croisé. L’utilisation de panneaux longs à deux travées a permis de limiter le nombre de levages à la grue, optimisant l’efficacité de l’assemblage et accélérant l’installation. La toiture adopte une configuration similaire à celle du sixième étage.

Voie de transfert de la charge et travées structurelles

Le bois massif déploie tout son potentiel dans des travées claires et régulières – des formes rectangulaires ou carrées – plutôt que dans des agencements irréguliers ou densément superposés. Son efficacité est optimisée lorsque les colonnes se prolongent sans interruption jusqu’aux fondations, assurant un transfert direct de la charge vers le sol et rendant la conception comme l’installation plus fluides.

Dans le cadre de ce projet, l’équipe a su mettre en œuvre cette logique en implantant la nouvelle structure en bois directement au‑dessus des travées structurelles existantes. Ce choix garantit une voie claire et fluide de transfert de la charge vers les fondations, tout en évitant toute complexification superflue.

Étude de faisabilité structurelle

Dès le départ, une étude de faisabilité structurelle a été réalisée pour examiner les systèmes gravitaires et latéraux du bâtiment et déterminer si l’ajout de deux étages au-dessus de la section actuelle de quatre étages était envisageable. 

Pour établir une base de référence, le bâtiment existant a été modélisé initialement sans l’extension proposée. Doté d’un parc de stationnement souterrain d’un étage couvrant toute son emprise et reposant sur des semelles en béton armé, Les systèmes porteurs verticaux (gravitaire) et latéraux, ainsi que les planchers en béton armé, ont été évalués dans le cadre de l’étude. Cette évaluation a combiné des calculs manuels et une modélisation tridimensionnelle par éléments finis pour analyser le comportement des systèmes structurels.

Le bâtiment a été remodélisé en intégrant le poids des divers matériaux structurels. L’étude a révélé que la charge supplémentaire se situerait entre ±8 % pour l’option la plus légère et ±20 % pour la plus lourde. Ces résultats ont confirmé que la structure actuelle pouvait supporter un agrandissement vertical de deux étages, à condition d’opter pour une solution légère ou modérée. Une structure plus massive dépasserait la capacité portante et nécessiterait des travaux de renforcement.

Le parement extérieur en acier aluminé galvanisé repose sur des entretoises thermiques Cascadia, complété par une isolation extérieure Cavityrock de 4 po (≈ 102 mm) et une isolation intérieure Comfortbatt de 6 po (≈ 152 mm) dans les murs. Chaque appartement bénéficie d’une thermopompe individuelle pour le chauffage et la climatisation, ainsi que d’un ventilateur récupérateur d’énergie (VRE). La modélisation énergétique révèle que l’extension affiche des performances supérieures de 7,1 % au CNÉB 2020, dépassant légèrement les attentes des bailleurs de fonds.

Chaque appartement est pensé selon des dimensions sans obstacle, intégrant des douches adaptées et, dans deux logements, des cuisines entièrement aménagées. Les portes plus larges, les couloirs ouverts et les salles de bain larges offrent un cadre de vie plus spacieux.

Les panneaux de bois massif ont servi à la construction des murs de contreventement centraux sur les deux étages, ainsi que la toiture et le sixième étage, tandis que des éléments en acier de charpente ont été ajoutés pour satisfaire aux exigences de hauteur libre et de résistance au feu. L’intégration verticale et horizontale de l’extension à la structure existante a posé plusieurs défis, notamment l’installation de gicleurs dans le nouvel espace, en plus des couloirs des cinquième et sixième étages du bâtiment d’origine.

Délivrés juste avant que le bois massif ne soit officiellement intégré au Code du bâtiment de l’Ontario, les permis ont exigé une solution de rechange : encapsuler tous les éléments en bois massif avec des panneaux de plâtre. Le plancher en bois lamellé-croisé de 175 mm a été soigneusement stratifié – deux couches de plâtre de 16 mm en dessous, une chape de 50 mm, un isolant acoustique Maxxon Acousti-Mat de 39 mm, et un revêtement de sol fini de 5 mm au-dessus – pour une composition totale d’environ 300 mm d’épaisseur.

Matériaux de construction

Épaisseur de construction

Poids du système avec résistance au feu

Béton armé

250 mm

6,0 kPa

Charpente d’acier structurel avec dalles préfabriquées

Dalles préfabriquées de 200 mm + chape de 50 mm

5,0 kPa

Charpente en acier structurel avec panneaux/murs en bois lamellé-croisé

175 mm

3,0 kPa

Charpente d’acier structurel avec solives en acier de faible épaisseur et sous-plancher en béton USG

Solives en acier léger de 300 mm

1,5 kPa

Options de matériaux de construction

Système horizontal

Système vertical

Béton armé

Dalles de plancher en béton

Colonnes en béton

Charpente d’acier structurel avec dalles préfabriquées

Dalles préfabriquées avec poutres en acier

Colonnes en acier

Charpente en acier structurel avec panneaux/murs en bois lamellé-croisé

Panneaux de plancher en bois lamellé-croisé avec poutres en acier

Panneaux muraux en bois lamellé-croisé avec colonnes en acier

Charpente d’acier structurel avec solives en acier de faible épaisseur et sous-plancher en béton USG

Solives en acier de faible épaisseur avec poutres en acier

Colonnes en acier

Même si le bois lamellé‑croisé n’est pas l’option la plus légère parmi les systèmes envisagés, il reste considérablement plus léger que les variantes en béton armé ou en acier préfabriqué. Grâce à cet avantage, il satisfait pleinement aux critères de conception en matière de poids établis par l’étude de faisabilité. 

Dans la conception proposée, le plancher et la toiture, ainsi que les murs porteurs intérieurs, sont réalisés en bois lamellé‑croisé, complétés par des poutres et colonnes d’acier assurant le reste du support structurel. Toutefois, l’exigence réglementaire de murs extérieurs non combustibles pour l’octroi du permis de construction a empêché l’utilisation du bois lamellé-croisé pour les murs extérieurs.

Avec le bois massif reconnu comme la solution légère la plus adaptée, l’équipe de conception a conçu une stratégie structurelle attentive aux charges gravitaires, aux interfaces matérielles, à la stabilité latérale et aux impératifs pratiques de la construction.

Comparaison des options

 

Équipe du projet :

Région municipale de Peel 

Initiative pour la création rapide de logements 

Pathway Non-Profit Community Developments Inc. of Peel (Pathway)

GSAI Planners

Tafler Rylett Architects

Engineering Link (systèmes structurels)

GPY & Associates Engineering inc. (systèmes mécaniques)

Summit Engineering (systèmes électriques)

Disano Sprinklers

Vortex Fire

HGC Acoustic Consultants

RDH Building Science

Scott Construction

Element5  

Photos : Scott Construction Group, Derek Szczerbowski, CWC

Conclusion

L’agrandissement vertical réalisé par Pathway démontre comment le bois massif peut ouvrir de nouvelles perspectives de logement sur des structures existantes, même face aux  contraintes d’immeubles en béton vieillissants. Portée par une analyse minutieuse, une conception harmonisée et une collaboration étroite de toute l’équipe de projet, cette extension a permis de créer des logements accessibles et de haute qualité, tout en minimisant les perturbations pour les résidents et le voisinage. À l’heure où les municipalités cherchent à densifier de façon responsable et efficace, ce projet incarne un modèle impérieux de la manière dont les systèmes légers en bois massif peuvent prolonger la vie utile des immeubles existants et accroître leur capacité, tout en répondant aux exigences actuelles de performances, de durabilité et de rapidité d’occupation.

Survol du projet

Pathway Housing, organisme interconfessionnel sans but lucratif, est propriétaire et gestionnaire de deux immeubles d’appartements datant du début des années 1990. En agrandissant son immeuble Arbour Mill à Mississauga, l’organisme a su éviter les difficultés liées à l’acquisition d’un nouveau terrain, tout en ouvrant ses portes à de nouveaux résidents dans un quartier bien ancré et solidaire.

À l’extrémité nord de l’immeuble, une structure verticale de deux étages (10 m sur 18 m) vient relier les cinquième et sixième étages du bâtiment voisin, créant une extension harmonieuse sans altérer la configuration existante. Comme l’édifice est demeuré habité durant les travaux, il a été essentiel de raccourcir la durée du chantier, d’où le choix judicieux du bois massif.

wood design and building logo

article en vedette

Étude de faisabilité structurelle

Dès le départ, une étude de faisabilité structurelle a été réalisée pour examiner les systèmes gravitaires et latéraux du bâtiment et déterminer si l’ajout de deux étages au-dessus de la section actuelle de quatre étages était envisageable. 

Pour établir une base de référence, le bâtiment existant a été modélisé initialement sans l’extension proposée. Doté d’un parc de stationnement souterrain d’un étage couvrant toute son emprise et reposant sur des semelles en béton armé, Les systèmes porteurs verticaux (gravitaire) et latéraux, ainsi que les planchers en béton armé, ont été évalués dans le cadre de l’étude. Cette évaluation a combiné des calculs manuels et une modélisation tridimensionnelle par éléments finis pour analyser le comportement des systèmes structurels.

Le bâtiment a été remodélisé en intégrant le poids des divers matériaux structurels. L’étude a révélé que la charge supplémentaire se situerait entre ±8 % pour l’option la plus légère et ±20 % pour la plus lourde. Ces résultats ont confirmé que la structure actuelle pouvait supporter un agrandissement vertical de deux étages, à condition d’opter pour une solution légère ou modérée. Une structure plus massive dépasserait la capacité portante et nécessiterait des travaux de renforcement.

Équipe du projet :

Région municipale de Peel 

Initiative pour la création rapide de logements 

Pathway Non-Profit Community Developments Inc. of Peel (Pathway)

GSAI Planners

Tafler Rylett Architects

Engineering Link (systèmes structurels)

GPY & Associates Engineering inc. (systèmes mécaniques)

Summit Engineering (systèmes électriques)

Disano Sprinklers

Vortex Fire

HGC Acoustic Consultants

RDH Building Science

Scott Construction

Element5  

Photos : Scott Construction Group, Derek Szczerbowski, CWC

Conclusion

L’agrandissement vertical réalisé par Pathway démontre comment le bois massif peut ouvrir de nouvelles perspectives de logement sur des structures existantes, même face aux  contraintes d’immeubles en béton vieillissants. Portée par une analyse minutieuse, une conception harmonisée et une collaboration étroite de toute l’équipe de projet, cette extension a permis de créer des logements accessibles et de haute qualité, tout en minimisant les perturbations pour les résidents et le voisinage. À l’heure où les municipalités cherchent à densifier de façon responsable et efficace, ce projet incarne un modèle impérieux de la manière dont les systèmes légers en bois massif peuvent prolonger la vie utile des immeubles existants et accroître leur capacité, tout en répondant aux exigences actuelles de performances, de durabilité et de rapidité d’occupation.

Options de matériaux de construction

Système horizontal

Système vertical

Béton armé

Dalles de plancher en béton

Colonnes en béton

Charpente d’acier structurel avec dalles préfabriquées

Dalles préfabriquées avec poutres en acier

Colonnes en acier

Charpente en acier structurel avec panneaux/murs en bois lamellé-croisé

Panneaux de plancher en bois lamellé-croisé avec poutres en acier

Panneaux muraux en bois lamellé-croisé avec colonnes en acier

Charpente d’acier structurel avec solives en acier de faible épaisseur et sous-plancher en béton USG

Solives en acier de faible épaisseur avec poutres en acier

Colonnes en acier

Matériaux de construction

Épaisseur de construction

Poids du système avec résistance au feu

Béton armé

250 mm

6,0 kPa

Charpente d’acier structurel avec dalles préfabriquées

Dalles préfabriquées de 200 mm + chape de 50 mm

5,0 kPa

Charpente en acier structurel avec panneaux/murs en bois lamellé-croisé

175 mm

3,0 kPa

Charpente d’acier structurel avec solives en acier de faible épaisseur et sous-plancher en béton USG

Solives en acier léger de 300 mm

1,5 kPa

Comparaison des options

Le graphique suivant compare quatre systèmes structurels différents :

  • Colonnes et dalles en béton armé

  • Charpente d’acier avec dalles préfabriquées

  • Charpente d’acier structurel avec panneaux en bois lamellé-croisé pour plancher et murs

  • Charpente d’acier structurel avec solives en acier de faible épaisseur et sous-plancher en béton USG

 

Le graphique suivant compare le poids des quatre options structurelles envisagées :

 

Même si le bois lamellé‑croisé n’est pas l’option la plus légère parmi les systèmes envisagés, il reste considérablement plus léger que les variantes en béton armé ou en acier préfabriqué. Grâce à cet avantage, il satisfait pleinement aux critères de conception en matière de poids établis par l’étude de faisabilité. 

Dans la conception proposée, le plancher et la toiture, ainsi que les murs porteurs intérieurs, sont réalisés en bois lamellé‑croisé, complétés par des poutres et colonnes d’acier assurant le reste du support structurel. Toutefois, l’exigence réglementaire de murs extérieurs non combustibles pour l’octroi du permis de construction a empêché l’utilisation du bois lamellé-croisé pour les murs extérieurs.

Avec le bois massif reconnu comme la solution légère la plus adaptée, l’équipe de conception a conçu une stratégie structurelle attentive aux charges gravitaires, aux interfaces matérielles, à la stabilité latérale et aux impératifs pratiques de la construction.

Le parement extérieur en acier aluminé galvanisé repose sur des entretoises thermiques Cascadia, complété par une isolation extérieure Cavityrock de 4 po (≈ 102 mm) et une isolation intérieure Comfortbatt de 6 po (≈ 152 mm) dans les murs. Chaque appartement bénéficie d’une thermopompe individuelle pour le chauffage et la climatisation, ainsi que d’un ventilateur récupérateur d’énergie (VRE). La modélisation énergétique révèle que l’extension affiche des performances supérieures de 7,1 % au CNÉB 2020, dépassant légèrement les attentes des bailleurs de fonds.

Chaque appartement est pensé selon des dimensions sans obstacle, intégrant des douches adaptées et, dans deux logements, des cuisines entièrement aménagées. Les portes plus larges, les couloirs ouverts et les salles de bain larges offrent un cadre de vie plus spacieux.

Les panneaux de bois massif ont servi à la construction des murs de contreventement centraux sur les deux étages, ainsi que la toiture et le sixième étage, tandis que des éléments en acier de charpente ont été ajoutés pour satisfaire aux exigences de hauteur libre et de résistance au feu. L’intégration verticale et horizontale de l’extension à la structure existante a posé plusieurs défis, notamment l’installation de gicleurs dans le nouvel espace, en plus des couloirs des cinquième et sixième étages du bâtiment d’origine.

Délivrés juste avant que le bois massif ne soit officiellement intégré au Code du bâtiment de l’Ontario, les permis ont exigé une solution de rechange : encapsuler tous les éléments en bois massif avec des panneaux de plâtre. Le plancher en bois lamellé-croisé de 175 mm a été soigneusement stratifié – deux couches de plâtre de 16 mm en dessous, une chape de 50 mm, un isolant acoustique Maxxon Acousti-Mat de 39 mm, et un revêtement de sol fini de 5 mm au-dessus – pour une composition totale d’environ 300 mm d’épaisseur.

Voie de transfert de la charge et travées structurelles

Le bois massif déploie tout son potentiel dans des travées claires et régulières – des formes rectangulaires ou carrées – plutôt que dans des agencements irréguliers ou densément superposés. Son efficacité est optimisée lorsque les colonnes se prolongent sans interruption jusqu’aux fondations, assurant un transfert direct de la charge vers le sol et rendant la conception comme l’installation plus fluides.

Dans le cadre de ce projet, l’équipe a su mettre en œuvre cette logique en implantant la nouvelle structure en bois directement au‑dessus des travées structurelles existantes. Ce choix garantit une voie claire et fluide de transfert de la charge vers les fondations, tout en évitant toute complexification superflue.

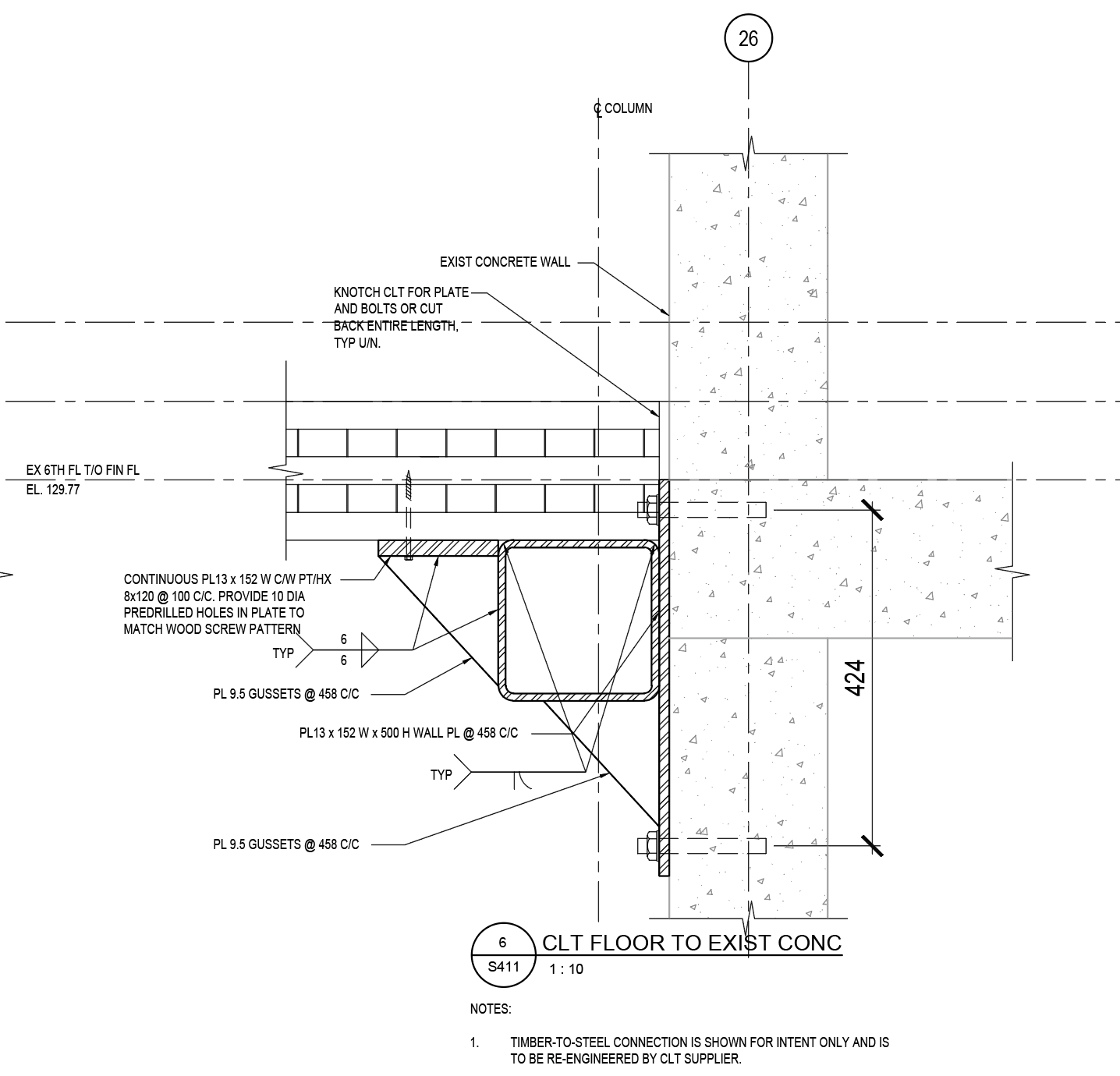
Système latéral

Le système de résistance aux charges horizontales du bâtiment existant s’appuie sur des murs de contreventement en béton orientés dans le sens court du bâtiment. Pour l’extension verticale, le diaphragme en bois lamellé-croisé se déploie en porte‑à‑faux au‑delà du dernier mur de contreventement afin de rejoindre les étages supérieurs. Un profilé de charpente creux, solidement ancré par des boulons Hilti, vient connecter et fixer le nouveau diaphragme au mur de contreventement existant.

Plan de charpente

Ce schéma présente le nouveau plan de charpente du sixième étage. Les panneaux de plancher en bois lamellé-croisé à deux travées ont 175 mm d’épaisseur. Orientés nord-sud, ils couvrent deux appartements. Ils s’étendent des poutres d’acier en périphérie jusqu’à la structure en béton existante, en passant par les murs mitoyens intérieurs en bois lamellé-croisé. L’utilisation de panneaux longs à deux travées a permis de limiter le nombre de levages à la grue, optimisant l’efficacité de l’assemblage et accélérant l’installation. La toiture adopte une configuration similaire à celle du sixième étage.

Connections

As with all mass timber construction, connection detailing is a critical component of the design, both between adjacent CLT panels and between the CLT panels and the structural steel elements. The following diagram illustrates two CLT-to-steel floor connection details. One for a continuous condition (left) and one at an edge condition (right)

This diagram shows a vertical connection between a CLT wall panel and a CLT floor panel, illustrating how loads are transferred and how the two elements are joined.

Avantages du projet

Approvisionnement local durable : fabriqués dans l’usine certifiée par le FSC d’Element5, à St Thomas, les panneaux de bois lamellé-croisé proviennent de bois récolté dans des forêts de l’Ontario gérées durablement, garantissant des pratiques responsables de la forêt à la production.

Construction à faible carbone : l’utilisation du bois massif plutôt que l’acier a entraîné une réduction estimée de 20 à 50 % du carbone intrinsèque de la structure. L’emplacement proche de l’usine de fabrication a également permis de diminuer les émissions et coûts liés au transport.

Système structurel léger : grâce à un poids structurel réduit d’environ 50 % par rapport à un bâtiment équivalent en béton, l’extension en bois massif a pu s’appuyer sur la structure existante, sans qu’il soit nécessaire d’ajouter des renforcements.

Rapidité et rentabilité de la construction : grâce à ses performances, la construction en bois massif peut être réalisée jusqu’à 25 %, voire davantage, plus vite que les méthodes traditionnelles. Pour Pathway, la synergie entre fabrication, livraison et installation a rendu possible le montage complet de la structure en deux semaines et demie seulement. Le recours à des panneaux en bois lamellé-croisé de pleine longueur et au perçage des ouvertures mécaniques sur place a accéléré encore plus la construction.

Chantier peu bruyant et moins perturbant : les bâtiments en bois massif sont assemblés plutôt que construits sur place, ce qui réduit considérablement le bruit et peut diminuer la circulation de véhicules sur le chantier jusqu’à 90 %. Par ailleurs, l’installation exige aussi moins de travailleurs; chez Pathway, un grutier et une équipe réduite de deux à trois personnes ont suffi pour installer le bois, réduisant ainsi au minimum les perturbations pour le quartier environnant.

Densification douce : en venant agrandir le bâtiment existant, l’extension a été conçue sans répercussions sur les propriétés voisines, facilitant ainsi l’accueil immédiat de nouveaux résidents dans un quartier établi et déjà doté des commodités familières.

Surmonter les difficultés avec assurance

Un partenariat solide au sein de l’équipe de projet dès les premières étapes est essentiel à la réussite du chantier. Chez Pathways, ce processus a débuté par un relevé minutieux des conditions existantes et une compréhension commune du degré de tolérance au risque. Grâce à cet entendement préalable, l’installation s’est déroulée avec fluidité, permettant la pose des murs et planchers sans obstacle.

Les chantiers portant sur des bâtiments déjà érigés réservent fréquemment des difficultés inattendues, et celui‑ci n’a pas échappé à la règle. Une fois le revêtement du mur de contreventement retiré, l’équipe a constaté que la surface en béton présentait des irrégularités, n’étant ni droite ni parfaitement verticale. Pour en évaluer les tolérances avec exactitude, l’entrepreneur a réalisé une analyse tridimensionnelle de la façade.

Sur la base de cette analyse, des plaques de calage en acier ont été installées derrière le profilé de charpente creux aux deux étages. Celles-ci ont comblé les écarts entre la lambourde d’acier et le béton irrégulier, assurant un alignement précis et un transfert fiable de la charge vers la structure.
À l’arrivée du bois sur le chantier, l’installation s’est effectuée sans accroc, malgré les différences de tolérance entre le bois lamellé-croisé et le béton. Celle du béton varie habituellement entre 25 et 30 mm, tandis que le bois affiche une tolérance de l’ordre de 2 à 3 mm. Cependant, grâce à une préparation rigoureuse, l’équipe a su composer efficacement avec ces écarts.